In recent years, the TRD construction method has developed rapidly in China. By the end of 2021, the total number of TRD projects in the country will exceed 500, and the total TRD construction volume will reach nearly 6 million cubic meters. Compared with the traditional construction method, the TRD construction method has many advantages: large construction depth, wide adaptability to stratum, good wall quality, high vertical accuracy, saving construction materials, and high equipment safety. It has been widely used in various foundation pit water-stop curtains , Reinforcement of ground connecting wall groove wall, profiled steel cement soil mixing wall, landfill and other pollution isolation and water conservancy anti-seepage walls and other fields.
Guangdong Province is a developed coastal province in my country. The traditional SMW three-axis mixing pile construction technology has been quite mature since it was introduced into Guangdong by Shanghai Guangda Foundation Engineering Co., Ltd. 10 years ago. However, the TRD construction method is still in its infancy. The TRD construction method was applied to the integrated construction of the Shantou high-speed railway station hub in Guangdong Province, with a construction volume of nearly 30,000 cubic meters, marking the breakthrough development of the TRD construction technology in southern China.
The Shantou high-speed rail station hub integration project has a total investment of 3.418 billion yuan. The renovation and construction contents include the rail transit reservation project, the distribution system ramp project, and the east square with an area of ??150,000 square meters. Due to the large number of TRD construction parties, two TRD-60D construction machines of SEMW?were stationed for construction work. Coincidentally, the company participating in this TRD construction is Shanghai Guangda Foundation, and one of the equipment is the first TRD product developed by SEMW, which was purchased by Shanghai Guangda Foundation 10 years ago, and has a construction capacity of 61m deep. After ten years of ups and downs, the No. 1 TRD-60D equipment is still young, its power is still very strong, and its quality is very reliable. It has made great contributions to the development of the vast number of enterprises in Shanghai. After ten years of development, SEMW's TRD products have now formed a series of TRD-C50, TRD60D/E, TRD70D/E, TRD80E products, constantly refreshing the record of TRD construction depth and construction efficiency, and the product technology is far ahead in the industry.
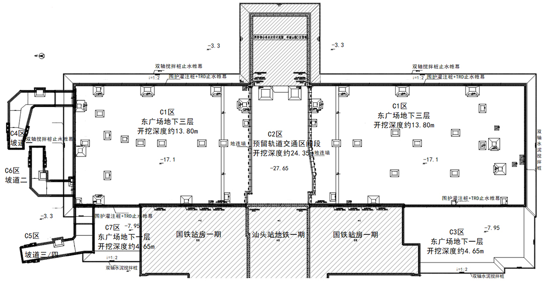
This project (East Plaza Area C) is located in the east of the existing railway station in Shantou City, adjacent to the planned Shantou high-speed railway station building on the west side, planning Shaoshan Road on the east side, planning station North Road on the north side, and planning on the south side. Zhannan Road, its underground space project mainly consists of three underground floors, the city management parking lot and bus parking lot on the west side are partially set up with one underground layer, and a rail transit section is reserved in the middle. Dig the pit together.
After the construction of the project is completed, the construction area of ??Shantou platform will be about 100,000 square meters, which will make Shantou's transportation system "completely upgraded" and become a comprehensive transportation hub with "zero transfer, station-city integration, and smooth traffic" in Shantou. The development of Shantou has also played a driving role, and its strategic significance is very important.
This project (East Plaza Area C) is located in the east of the existing railway station in Shantou City, adjacent to the planned Shantou high-speed railway station building on the west side, planning Shaoshan Road on the east side, planning station North Road on the north side, and planning on the south side. Zhannan Road, its underground space project mainly consists of three underground floors, the city management parking lot and bus parking lot on the west side are partially set up with one underground layer, and a rail transit section is reserved in the middle. Dig the pit together.
After the construction of the project is completed, the construction area of ??Shantou platform will be about 100,000 square meters, which will make Shantou's transportation system "completely upgraded" and become a comprehensive transportation hub with "zero transfer, station-city integration, and smooth traffic" in Shantou. The development of Shantou has also played a driving role, and its strategic significance is very important.
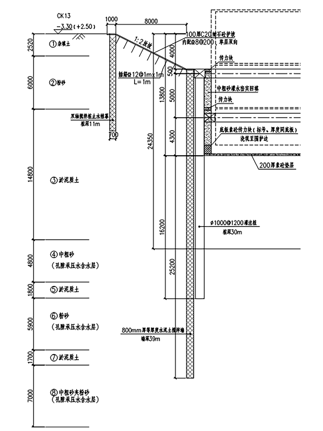
The surrounding environment of the foundation pit of the project is complex. In order to reduce the impact of foundation pit excavation and precipitation on the surrounding environment, an equal-thickness cement-soil mixing wall is set on the outside of the foundation pit supporting piles in the C1 area to stop the water. The method of pile + equal-thickness cement mixing wall, TRD construction method, the deep cement-soil mixing wall is 800mm thick and 39m deep, and the project is planned to be completed in 60 days.
The specific parameters are as follows: (1) The thickness is 800mm, the wall top elevation is -3.3m, and the wall bottom elevation is -42.3m; (2) P.O 42.5 grade ordinary Portland cement is used for curing liquid mixing, the water-cement ratio is 1.2, and the cement content is not Less than 25~30%; (3) Sodium-based bentonite is used for mixing the excavation liquid, and 5~10% bentonite is added to each cube of the agitated soil; (4) The deviation of the verticality of the wall is less than 1/250, the deviation of the wall position is not more than 20mm, the deviation of the wall depth is not more than 50mm, and the deviation of the wall thickness is not more than 20mm.
The floor plan and cross-section of the foundation pit enclosure are as follows:
The TRD wall in this project needs to pass through multiple layers of sand, and the depth of the wall reaches 39m, which is difficult to construct. The targeted measures are as follows:
1. Because the wall is 39m deep and needs to pass through multiple layers of sand, the requirements for TRD construction equipment are relatively high. Before construction every day, the mechanic needs to check the TRD equipment. The chain is checked, and the worn knife row and chain are replaced in time to ensure the cutting ability of the equipment. 2. When cutting, it is necessary to pay attention to whether the cutting box and the chain are abnormally shaken. If the cutting speed is slowed down, or even cannot be advanced, the construction needs to be suspended and dealt with in time.?
TRD construction method equipment adopts the clockwise direction, first from north to south from the middle of the east side, then from east to west from the southeast corner, then from south to north from the southwest corner, then from west to east from the northwest corner, and finally from the northeast corner Construction from north to south, the construction diagram is as follows:
Lian Po is old, can he still eat? This Shanggong Machinery TRD-60D construction method dispels everyone's doubts with construction data. The depth is 39m, the wall thickness is 0.8m, the cutting is 2 meters in 1 hour, the retraction is 4 meters in 1 hour, and the shotcrete is 3 meters in 1 hour. It can be easily done every day. The wall is more than 15m, which is the so-called "old and strong".
On the other side, another Shanggong Machinery TRD-60D construction machine produced in March 2020 has been assembled and will join the construction soon. The "two generations" of old and young echo each other and will paint a picture of quality and inheritance.
With the gradual increase in the application cases of TRD construction technology in South China, the superiority of TRD construction will gradually be verified. We are convinced that TRD construction technology will be the same as the SMW technology ten years ago, and will achieve great development in South China.
Post time: Sep-19-2022
???